MENU
  • Loading ...
  • Loading ...

Mountway Holiday Apartments West Perth

West Perth, WA

Address: 36 Mount St , West Perth WA 6005

About Mountway Holiday Apartments West Perth

Book Direct with the Owner at Mountway Holiday Apartments West Perth in West Perth with Accommodation Coffs Harbour. Click on the Email or Call Now button to get your special price, talk with the owner to get a special price.

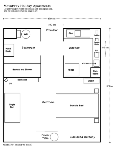
Situated in picturesque Mount Street between Kings Park and the City, adjacent to the Swan River, sixty-eight studio apartments with elevator to all levels. Air-conditioning in Summer, heating in winter. Each apartment is fully self-contained, with kitchen, private bathroom. Linen, blankets, crockery and cutlery supplied. Television with local channels and free FOXTEL Most apartments have wide city views from balconies. Some spectacular river views are available from several vantage points. Walk to the city and business locations in a few minutes. Free parking on-site. We are close to restaurants and entertainment, bus-port and free CAT bus. Perth Convention Centre is a 7 minute walk. For business or leisure, Mountway is the ideal location. On site facilities include pantry shopping, wireless internet service, and token operated laundry. The new out-door Barbeque area is now available 'Free to Guest'.
 

Facebook

Booking.com

Mountway Holiday Apartments West Perth

Accommodation Coffs Harbour welcomes Mountway Holiday Apartments West Perth, the ideal West Perth WA Holiday outlet for all the family to enjoy. We have made sure that we have thought of everything you would expect from your vacation with many features, click on the email or phone now button to get in touch with the owner.

Is Mountway Holiday Apartments West Perth in West Perth your property on Accommodation Coffs Harbour, please claim your listing and subscribe to update your contact details and receive your phone calls and emails from your clients.


Mountway Holiday Apartments West Perth

Click the below to email this business

Email Business

Thank you!

Your enquiry has been submitted

Please fill out the form below to send an enquiry to this business

Accommodation Coffs Harbour displayed beautifully on multiple devices

Unlock the Full Potential of Your Business with
Accommodation Coffs Harbour

  • Rectify inaccuracies in your listing via Accommodation Coffs Harbour
  • Turn on the Call Now Button to directly receive customer calls.
  • Enable the Visit Website Button to drive a continuous flow of traffic to your site.
  • Enable Email Button to effortlessly gather your clients' email addresses.
Claiming or adding your listing not only grants you access to missed call alerts and client emails via Accommodation Coffs Harbour but also connects you with over 500 partner sites. This strategic move amplifies your client engagement and boosts your visibility on Google, social media, and within the QLD Tourism ecosystem

copyright © 2026 Accommodation Coffs Harbour.   All rights reserved.

A B C D E F G H I J K L M N O P Q R S T U V W X Y Z